办公屏风|高隔间系统|108款双玻高隔断|高隔间|高隔断
108Double
产品参数
-
型号:
108Double
-
尺寸:
-
材质:
产品描述
暂未添加
108款高隔断,厚度为108mm,它又分为108款双玻隔断和108款双面隔断,是目前东方华奥家具主推产品。面板跨度最大可达2400mm,玻璃跨度最大可达3200mm,高度可以做到6000mm,是东方华奥家具隔断墙系列里跨度分割和高度分割最大的一个系列。
如何用高隔断来演绎空间之美 |
|
前言:
把办公室的氛围设计得和睦友好,其用意主要是创造 一种社交景观,通过和睦友好的氛围,将员工们引入一个有共同目标的团体中。高隔断的出现,正是符合了这样的新办公人文理念,摈弃了以往的呆板乏味、缺乏灵动的空间意识。在一定程度上颠覆了人们传统办公空间的意识形态,而更符合现代人所接纳的办公空间理念(为什么这么说呢),它绿色环保节能省材,材料90%的重复使用率,空间灵活多变,工期短,是可以带走的装修。这主要体现在高隔断装潢六大的优势: ①灵活的空间重组,90%的材料重复利用。 ②模块化现场组装、装潢工程期短 ③表面材料的千面万化,增加了更多人性化和设计的可能性 |
|
设计禁忌: 高隔断在设计中有一些问题是要注意的,当和客户洽谈方案的过程中,请谨慎地回答客户提出的问题,切勿盲目地答应客户提的设计要求,毕竟高隔断也有自身的局限性。 一,未顶到天花的高隔断,固定方式有五种 1 双面隔墙每隔3米左右距离加一支连接柱,并且连接柱需伸到楼顶再加以固定;单玻隔墙为每两樘加一支连接柱。 二、走线功能 三,面材的设计注意事项 |
|
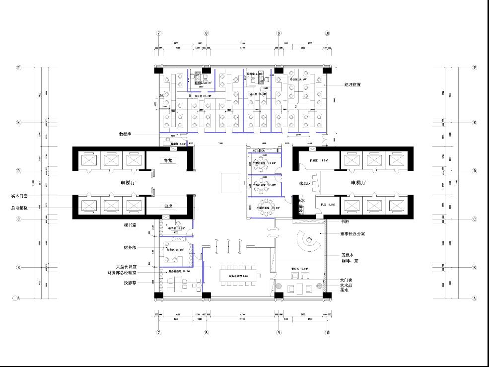
设计方案分析: 广州光亚展览贸易有限公司(甲方),成立于 1995 年,是广州展览行业成立最早的民营展览公司之一, 广东会议展览业协会和广州市会展业行业协会的副会长单位,旗下的 “ 广州国际照明 + 建筑电气技术展览会” 现已发展成为亚洲最大、全球第二的国际性展览会。 |
修改前的平面布置图![]() |
|
|
| 走道是双面108款钢化玻璃设计,最大化的把自然光引进室内。单玻密拼实木门的运用,黑色的铝合金框架,大面积钢化雾玻和清玻搭配,都透露着设计者的良苦用心! |
|
|
| 密拼实木门的设计是本案的一大亮点,它在以后的方案设计中起到一定的主导作用,会议室主讲台隔墙,中间是浅蓝烤漆玻用以书写,笔托设计的是镶嵌式的,是为了防止人员碰撞。两边是黑色KM板加以装饰,使得整面隔墙朴素,内敛,大气! |
案例欣赏![]() |
案例欣赏![]() |
案例欣赏![]() |
108款双玻高隔断工程案例![]() |
材料说明:炭黑闪银铝框、6mm钢化清玻 设计说明:隔断高度均分四格,硬朗规律的线条划分,让空间充满了灵动的气息和时代感。6mm钢化清玻使得整个办公环境通体明亮,节约了能源。 |
108款双玻高隔断工程案例![]() |
| 材料说明:炭黑闪银铝框、6mm钢化清玻、 6mm钢化磨砂玻璃 设计说明:高隔断一面用6mm钢化清玻,一面用6mm钢化药水砂玻,在保障空间私密性的同时,也起到了良好的采光效果。整体效果不失沉稳、大气。这也是经常用到得一种处理方法。 |
108款双玻高隔断工程案例![]() |
材料说明:乳白色铝框、6mm钢化清玻、 25mm百叶帘 设计说明:高隔断双面采用6mm钢化清玻,横纵向可自由分割,根据开云体育需要在玻璃上做不同造型,或内置百叶帘,增加了空间的灵活私密性。为防止百叶帘变形,横向跨度最好限制在1.3米之内。 |


























