开云体育

金融、法院家具|工行营业厅家具|办公家具|设计师家具|靠墙式填单台
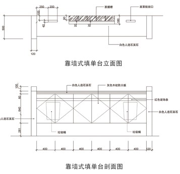
CG-DSG-T04

产品参数

  • 型号:

    CG-DSG-T04

  • 尺寸:

  • 材质:

产品描述

暂未添加

收藏

相关产品